I offer a range of design services tailored to your space, your needs, and your vision.

Because every project is unique, I encourage you to get in touch to chat about what’s right for you. Whether it’s a space refresh, a full visualisation, furniture, fixtures and equipment (FF&E) selection & procurement, styling support, or complete project management, every service is designed to make your space feel effortless, beautiful, and truly yours.

Starter design discovery 

From £200

Provides you with:

+Site visit to take images and measure up the space

+Mood board

+ 2D plan with measurements

Image of Anna, Founder of Anna Francesca Interiors. A woman with long brown hair, wearing a white shirt, is sitting at a table with a smile on her face, in a bright, cozy room with plants and sunlight.
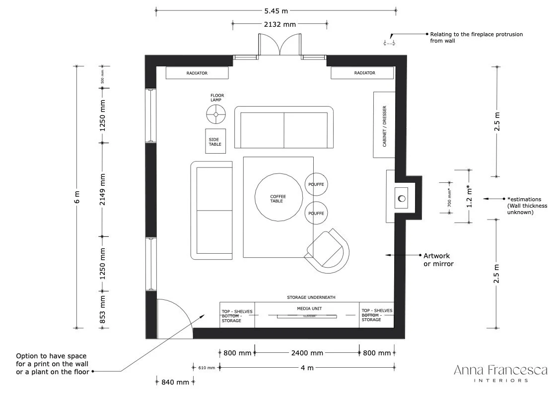
Floor plan of a living room with labeled furniture and measurements, including a sofa, coffee table, side table, radiator, artwork or mirror, storage units, and a fireplace.
Interior design mood board featuring bathroom and vanity images, a shower area, a floating vanity with a stone sink, a toilet, a bathtub, natural textures like wood and stone, bathroom accessories, a mirror, a plant, and neutral colour palette.

Full visualisation package

From £760

Provides you with:

+Site visit to take images and measure up the space

+Mood board

+2D plan with measurements

+3D model

Bathroom with beige tiled walls, wooden vanity with sink, and a large mirror. There are two black wall-mounted lights on either side of the mirror. The bathtub is on the left, with a small stool holding a candle. On the right wall, there is a framed picture and hanging greenery. A modern toilet is on the right, and a black shelf with decorative items is on the left.
A 3D rendering of a modern, multi-story house showing different interior layouts across four floor plans, including living rooms, bedrooms, kitchens, and staircases, with light-colored wood flooring and contemporary furniture.
Top-down view of a modern apartment floor plan featuring a living room, bathroom, bedroom, and outdoor balcony with plants and seating.
Floor plan of a living room with dimensions and furniture layout, including sofas, armchairs, side tables, a media unit, a coffee table, and indoor plants.

FF&E* SELECTION AND procurement  

*Furniture, Fixtures & Equipment

From £280 (based on day-rate)

Provides you with:

 +Furniture, Fixtures, Equipment and Finishes Board with shoppable links

+Trade discount benefits

+Budget Management

+Sample Sourcing

+Visiting Showrooms

+Supplier & tradespeople liaison

Anna adjusting pillows on a bed, with a bedside lamp in the background.
Anna smiling and working on a laptop with a vase of blue thistle and white flowers in focus in the foreground.
Anna wearing a white shirt, standing at a white table, looking at samples with a smile.
Layout of a laundry room with appliances, shelves, storage, and decor items.

Full design visualisation package INCLUDING rendering

From £1000

Provides you with:

+Site visit to take images and measurements of the space

+Mood board

+2D plan with measurements

+3D model

+Photorealistic render - a completely customised, photo-realistic, styled design of how the space will look on completion - after sign off of the concept, 2D plan, product list (optional) and 3D model.

Client will receive at minimum 2 rendered views of the space. (Any additional images will be charged at an hourly rate.)

Read the FAQs to find out more about 3D designs and rendering.

3D render of a Living room with media unit design, built-in shelves with decorative items, a flat-screen TV, a white armchair, a brown couch, a floor lamp, and sheer curtains.
Small living area with a white sofa adorned with beige patterned pillows, a wooden coffee table resembling sliced tree wood, a wall decoration of various round woven baskets, a side table with a potted plant, and a kitchen area with wooden cabinets, a sink, and a stove.
Living room with a striped sofa, a wooden coffee table with books and a vase, a beige armchair, a navy sofa with pillows, a TV on a white built-in shelf, framed paintings, and a window with curtains
Modern bathroom with black-framed glass shower, white sink on wooden vanity, black fixtures, wall-mounted shelves with plants and decor, and white walls.

From £80

Provides you with:

Comprehensive in-home or virtual consultation - usually takes around 2 hours depending on the size of space and complexity of project - here, we will see the space, discuss the brief in detail, exchange ideas, and get an understanding of budget for the project.

I can provide advice on furniture, finishes and accessories and arrangement of existing items or suggestions for a new design. If desired, I can also produce a short starter/aspirational shopping list or a follow-up “styling guide.”

styling consultation

Person browsing magazines on a wooden table in a living room.
Woman hanging three framed black and white artwork illustrations of animals and a jellyfish on a green wall.
Anna tidying a beige sofa with brown cushions in a living room, near a table lamp and a television.
Anna making the bed, pulling a quilt with navy and white patterns, in a bedroom with a light gray wall and wooden nightstand with a glass jar and woven basket.
Anna folding a knitted blanket on a pink bed in a bedroom with a bedside lamp.
A person's hand is lighting a candle among four lit candles in a wooden bowl on a wooden table. Magazines are spread on the table.